Casa indipendente in vendita

Posta Fibreno, Contrada Stretta
€ 165.000
7 locali 7 locali
355 Mq 355 Mq
4 bagni 4 bagni

Casa indipendente in vendita

Posta Fibreno, Contrada Stretta

Descrizione annuncio

Nel suggestivo borgo di Posta Fibreno, a pochi passi dalle acque cristalline del Lago, proponiamo una CASA INDIPENDENTE che unisce spazio, comfort e il fascino autentico della vita a contatto con la natura.

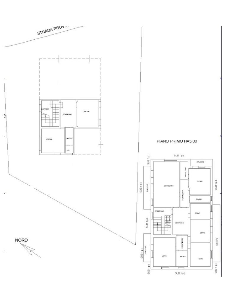
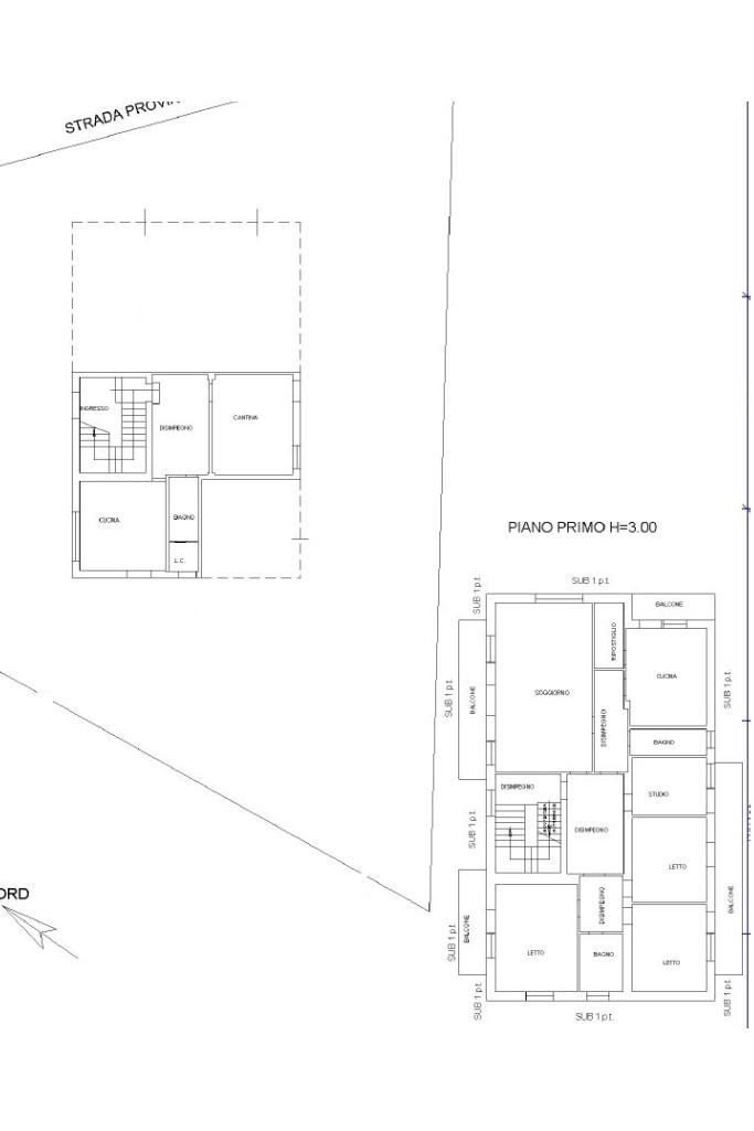
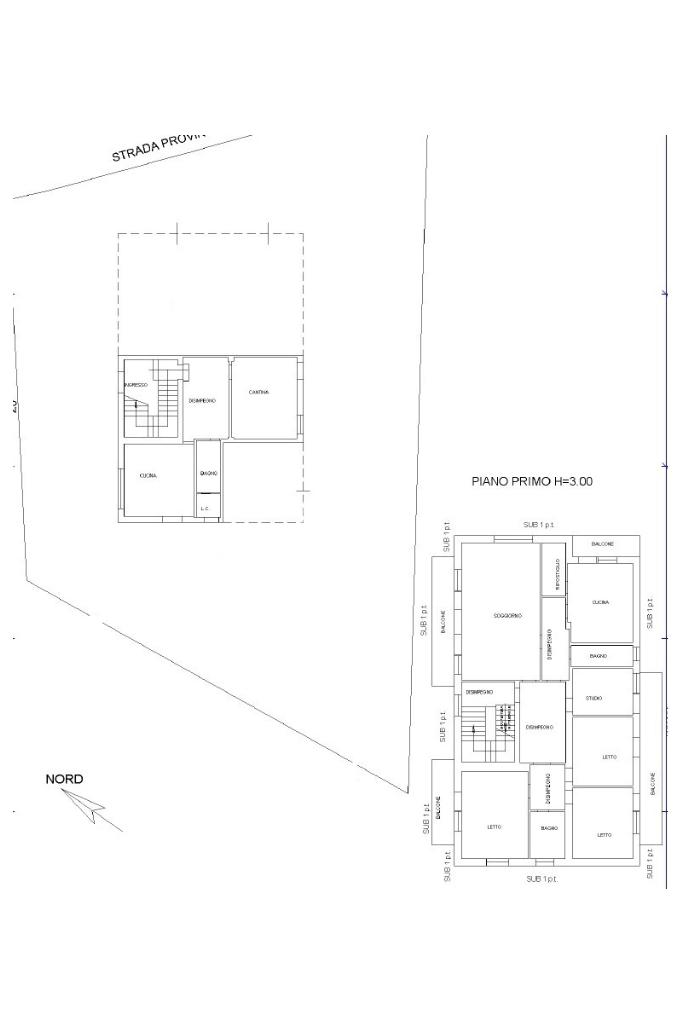
L’abitazione, circondata da circa 300mq di Giardino, si sviluppa su due livelli. Al piano terra troviamo un ampio garage doppio con bagno, una cucina rustica, il disimpegno, bagno e n°2 comode cantine. Ambienti versatili, ideali anche come taverna o spazio hobby.

Salendo al piano superiore si apre l’appartamento principale, composto da stanze ampie e luminose, con spazi ben distribuiti e balconi che regalano piacevoli affacci sul verde circostante. Qui ogni ambiente trasmette una sensazione di accoglienza e tranquillità, perfetta sia per una famiglia sia per chi desidera una casa vacanze in uno dei luoghi più suggestivi della zona.

La posizione è uno dei suoi punti di forza: a breve distanza dal lago e immersa in un contesto riservato, questa proprietà rappresenta un’opportunità unica per chi sogna una casa indipendente in un’oasi naturale, senza rinunciare alla comodità dei servizi.

Una soluzione dal grande potenziale, pronta a diventare il vostro nuovo rifugio di serenità.

Mostra tutto

Nelle vicinanze

Farmacia Farmacia
Farmicia
2,1 Km
Dispensario Farmaceutico
2,6 Km
Supermercati Supermercati
Supermercati
1,7 Km
Bar Bar
L'elfo del lago
1,7 Km
Bar Marconi
2,4 Km
Caffetteria Simeone
2,6 Km
Ristoranti Ristoranti
Ristoranti
960 m
Smile. birreria gastronomía
1,7 Km
Tapa
2,0 Km
Mostra tutto

Caratteristiche

Rif.:
61181191
Piano:
2 di 2 (Piano su più livelli)
Box:
2
Posti auto:
5
Balconi:
4
Camere da letto:
3
Mostra tutto
Prezzo Prezzo
€ 165.000
Rata mutuo Rata mutuo
€ 782 / mese
Spese annue Spese annue
€ 0
Proponi il tuo prezzoProponi il tuo prezzo
Immobile valutato con T·Valuta

Classe Energetica

G
G
G
G
G
G
G
G
G
EP globale non rinnovabile:
132.50 kW h/m² anno
EP invernale del fabbricato:
EP estiva del fabbricato:
Anno di costruzione:
1968
Riscaldamento:
Autonomo
Tipo impianto:
A radiatori
Tipo alimentazione:
Metano

Ti interessa visionare l'immobile?

Fissa un appuntamento  Fissa un appuntamento

Richiedi informazioni

Clicca su Leggi per aprire l'informativa
* Questi campi sono obbligatori

Calcola il tuo mutuo

Semplice e senza impegno
Anticipo

( % )
Mutuo

( % )

pochi semplici passi

inserisci i tuoi dati
Questionario completato
Grazie per aver richiesto un appuntamento senza impegno con un nostro Consulente del Credito e Assicurativo.

Hai inserito correttamente tutti i dati necessari e a breve riceverai una e-mail con un link da convalidare per inviare i tuoi dati.
Affiliato
Euro Immobiliare Srl
Via Vittorio Emanuele III, 10 03039 Sora (FR)

Il nostro staff


  • Gianni Roscioli
    Affiliato

  • Melania Battisti
    Responsabile
Via Vittorio Emanuele III, 10 03039 Sora (FR)
Zona: Sora
Mostra su mappa
Orari: dal Lunedì al Venerdì: dalle 9:00 alle 13:00 e dalle 15:30 alle 19:30 - il Sabato dalle 9:00 alle 13:00 - Domenica chiuso
Affiliato
Euro Immobiliare Srl
Via Vittorio Emanuele III, 10 03039 Sora (FR)

2026 Tecnocasa Franchising S.p.A. - P. IVA 08365160152 - Via Monte Bianco 60/A 20089 Rozzano (MI). Ogni agenzia ha un proprio titolare ed è autonoma. Privacy policy | Policy utilizzo | Cookie policy