Palazzina in vendita

Campoli Appennino, Via Campo di Fiori
€ 76.000
9 locali 9 locali
180 Mq 180 Mq
1 bagno 1 bagno

Palazzina in vendita

Campoli Appennino, Via Campo di Fiori

Descrizione annuncio

Nel cuore autentico del borgo medievale di Campoli Appennino, all’ombra della sua iconica Torre Medievale, proponiamo una PALAZZINA cielo-terra che racchiude tutto il fascino della storia e il calore delle case di una volta.

Quì non acquisti solo un immobile: scegli di vivere un’atmosfera. Le pietre antiche raccontano secoli di tradizioni, i vicoli silenziosi profumano di autenticità e ogni finestra regala scorci suggestivi sul borgo e sui monti che lo circondano.

La proprietà si sviluppa su tre livelli, con ingresso indipendente e un prezioso cortile esclusivo, uno spazio intimo e riservato dove organizzare cene estive sotto le stelle. Una rarità nel centro storico.

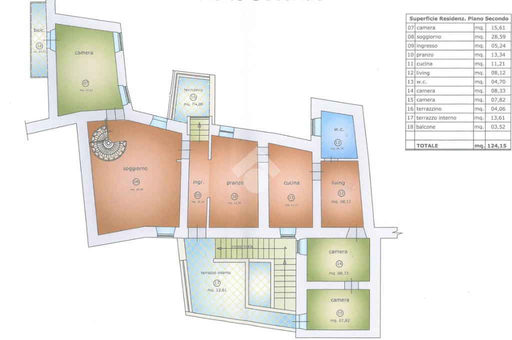
All’interno, gli ambienti si distribuiscono in modo armonioso, offrendo spazi versatili e accoglienti, ideali sia come abitazione principale per chi desidera tranquillità e qualità della vita, sia come casa vacanze o struttura ricettiva di charme. Ogni piano custodisce il potenziale per diventare qualcosa di speciale: al troviamo una tavernetta, lavanderia e cantina; al troviamo una zona giorno calda e conviviale con una sala con il camino, cucina, ampio soggiorno, bagno e n°3 camere intime e silenziose, angoli da personalizzare secondo il proprio gusto. Completano la proprietà n°2 Terrazzini dove fare colazione al sole o leggere un libro nel pomeriggio e il Sottotetto di 80mq.

La posizione è semplicemente privilegiata: centrale ma riservata, immersa nella bellezza senza tempo del borgo, a pochi passi dai servizi e dai punti più suggestivi del paese.

Se sogni una dimora dal carattere autentico, lontana dal caos ma vicina a tutto ciò che conta, questa palazzina è l’occasione perfetta per trasformare un desiderio in realtà.

Lasciati conquistare dal fascino di Campoli Appennino: questa casa ti aspetta.

Mostra tutto

Nelle vicinanze

Trasporto pubblico Trasporto pubblico
fermata acotral
fermata acotral
1,9 Km
Scuole Scuole
Scuole
2,0 Km
Farmacia Farmacia
Farmacia
2,1 Km
Negozi Negozi
Alimentari Rea
2,2 Km
Bar Bar
Bar
2,1 Km
Ristoranti Ristoranti
Pizzeria Nonno Vincenzo
1,4 Km
Trattoria La Torre (da Peppe... olé se magna)
1,6 Km
Ristoranti
1,7 Km
La locanda del Borgo
2,2 Km
Mostra tutto

Caratteristiche

Rif.:
61181198
Piano:
3 di 3 (Piano su più livelli)
Balconi:
1
Terrazzi:
2
Camere da letto:
3
Arredamento:
Assente
Mostra tutto
Prezzo Prezzo
€ 76.000
Rata mutuo Rata mutuo
€ 360 / mese
Spese annue Spese annue
€ 0
Proponi il tuo prezzoProponi il tuo prezzo

Classe Energetica

G
G
G
G
G
G
G
G
G
EP globale non rinnovabile:
132.50 kW h/m² anno
EP invernale del fabbricato:
EP estiva del fabbricato:
Anno di costruzione:
1940
Riscaldamento:
Autonomo
Tipo impianto:
A radiatori
Tipo alimentazione:
Metano

Ti interessa visionare l'immobile?

Fissa un appuntamento  Fissa un appuntamento

Richiedi informazioni

Clicca su Leggi per aprire l'informativa
* Questi campi sono obbligatori

Calcola il tuo mutuo

Semplice e senza impegno
Anticipo

( % )
Mutuo

( % )

pochi semplici passi

inserisci i tuoi dati
Questionario completato
Grazie per aver richiesto un appuntamento senza impegno con un nostro Consulente del Credito e Assicurativo.

Hai inserito correttamente tutti i dati necessari e a breve riceverai una e-mail con un link da convalidare per inviare i tuoi dati.
Affiliato
Euro Immobiliare Srl
Via Vittorio Emanuele III, 10 03039 Sora (FR)

Il nostro staff


  • Gianni Roscioli
    Affiliato

  • Melania Battisti
    Responsabile
Via Vittorio Emanuele III, 10 03039 Sora (FR)
Zona: Sora
Mostra su mappa
Orari: dal Lunedì al Venerdì: dalle 9:00 alle 13:00 e dalle 15:30 alle 19:30 - il Sabato dalle 9:00 alle 13:00 - Domenica chiuso
Affiliato
Euro Immobiliare Srl
Via Vittorio Emanuele III, 10 03039 Sora (FR)

2026 Tecnocasa Franchising S.p.A. - P. IVA 08365160152 - Via Monte Bianco 60/A 20089 Rozzano (MI). Ogni agenzia ha un proprio titolare ed è autonoma. Privacy policy | Policy utilizzo | Cookie policy